Boerderij Hoogh hout wout
Door Co de Rijcke

De voorgevel na de restauratie in 1962 (foto 1962).
Deze boerderij (op nummer 48) is al eeuwenlang gezichtsbepalend voor de Gouwe en tevens de enige overgeblevene uit de 17e eeuw. Als huidige bewoners is het voor ons een uitdaging om uit te zoeken wie er in het verleden gewoond hebben. We komen dan terecht bij namen als Sijp, Pijper en Glas. Op de gevelsteen in de boerderij staat het jaartal 1671. In dat jaar is de boerderij gebouwd. Wie de opdrachtgever was, is niet duidelijk. Wel woonde er in 1669 een Sijp aan de Boekel in Hoogwoud. De naam Sijp komt echter niet voor op een overzicht van de belastingen uit 1638. Er woonden toen al diverse vermogende mensen aan de Gouwe. Dit waren:
Jan Pietersz Piet 12.000 guldens
Pieter Jansz oude Pieter 9.000 guldens
Desselfts kind 9.000 guldens
Jonghe Jan Cos 9.000 guldens
Zoals gezegd staat op de gevelsteen het jaartal 1671. Dit is niet het eerste jaar dat er een boerderij heeft gestaan. Uit opgravingen in de sloot naast de boerderij blijkt dat er al veel langer mensen hebben gewoond. Er is zelfs veel uniek aardewerk gevonden. De oudste vondsten dateren uit het jaar 1580. Het gevonden aardewerk wordt gerestaureerd en krijgt weer een plaats in de boerderij.
Het gaat onder andere om ‘Majolica’ aardewerk. Dit aardewerk werd eerst op Majorca en vervolgens in Italië gemaakt. Tijdens de bloei van de Nederlanden in de 16e eeuw vestigden Italiaanse majolica-bakkers zich in Haarlem, Amsterdam en Delft. De productie kwam daar tussen 1600 en 1650 zowel in technisch als artistiek opzicht tot grote bloei. Ook de rijke boeren en burgers van Westfriesland kochten deze Majolica-schotels om hun huizen op te sieren. Ze staan op de vries van de schouw, de bedstee of als wanddecoratie. In de woonkamer van de boerderij loopt aan weerskanten een zogenaamde schotelrand waar wel 25 schotels op kunnen staan. De schotels versierden in de zomer ook de stal wanneer het vee in de weide liep. Majolica-aardewerk is bedekt met een wit tinglazuur waarop veelal gekleurde schilderingen zijn aangebracht. Majolica is ook gevonden in Alkmaar, De Rijp en Hoorn.

Enkele voorwerpen van het op het erf van de boerderij gevonden aardewerk (1580-1620). De drie linkse borden zijn van het zogenaamde slibaardewerk. Het grootste bord (diam. 37 cm) is van +/- 1590 en heeft een bloem in het midden met aan weerszijde een vogel. Het kleinere bord is gedateerd 1617 en er staat een leeuwtje in het midden. De twee borden aan de rechterzijde zijn Majolica aardewerk (1600-1620). De potjes zijn gebruiksvoorwerpen uit +/- 1600, o.a. een zalfpotje en oliekruikje.
Daarnaast is er het goedkopere slibaardewerk. De kleine burgerij maar ook boeren kochten dit aardewerk. Het heeft een rode ondergrond waarop witte decoraties van verdunde fijnaarde zijn aangebracht. De pottenbakkers waren eenvoudige handwerkslieden die op diverse plaatsen in Noord-Holland woonden. Op de boerderij zijn diverse schotels gevonden o.a. uit 1614 die versierd is met twee duiven. Het is dus een verlovings- of huwelijksbord. De symbolen hebben alle betrekking op huwelijk, vruchtbaarheid of allerlei deugden. Slibaardewerk is na 1650 verdrongen door porselein en delftsaardewerk.
De periode 1400-1671
Op de gevelsteen staat het jaartal 1671. Het mag duidelijk zijn dat er al veel eerder een boerderij stond. De boerderij van 1671 kan alleen gebouwd zijn door iemand met geld. Dit is afkomstig van de verkoop van kaas en boter. Dit luxe product wordt voor een beste prijs aan de rijke burgers van Amsterdam en andere steden verkocht. De omschakeling naar veehouderij vindt al plaats vanaf ongeveer 1400. Het graan verdwijnt uit WestFriesland en de koeien komen er voor in de plaats. Grote boeren kopen het land van kleintjes en zo ontstaan vooral na 1600 grote boerderijen. Na 1670 is de Gouden Eeuw van Holland ten einde. De vraag naar kaas en boter neemt af. De boeren gaan weer graan verbouwen. Grote boeren blijven de kleintjes uitkopen. Zo neemt de omvang van de boerderij toe van 20 tot zowat 40 hectare.
De eerste Sijp
De oudst bekende bewoner is Louris Cornelis Sijp. Hij overlijdt in 1730 en was dus niet de bouwer van de boerderij. Zijn vrouw Griet Adriaans (Stocman) overlijdt op 15 december 1727. Hun grafsteen is te vinden op het kerkhof van de Nederlands Hervormde kerk te Hoogwoud. Er staat te lezen:
H:L:B: (=Hier Leit Begraven) Griet Adriaans Obiit Den 15 December A° 1727 en
haar man Louwr[is] Comelisz. Sijp. (O[b]iit Den 14 Mey A° 1730
Louris Sijp is boer. Hij begint met 20 morgen en 120 roeden land. maar koopt er land bij. Omstreeks 1720 laat hij een kap(bergschuur) bij de boerderij bouwen. Sijp is een vermogend man. Hij leent op 23 mei 1727 aan vrouwe Catharine Baronne van der Noot 2000 Carole guldens tegen 4% rente per jaar. Sijp is burgemeester, schepen en schotgaarder te Hoogwoud. In 1729 is hij nog `regeerende Precident-Schepen' te Hoogwoud, aldus een notitie van Heynsius, de baljuw van de Stede Hoochtwout. Op 21 september 1729 verdeelt hij zijn bezit onder zijn twee zonen Jan en Cornelis. Cornelis krijgt de boerderij in bruikleen. Vader en zoon wonen gezamenlijk op de boerderij tot Louris in 1730 overlijdt.
De tweede Sijp
Cornelis Louris Sijp (1709 - 1782) bekleedt vele functies. Hij maakt het grootste deel van zijn volwassen leven deel uit van het College van Schout en Schepenen. Burgemeester is hij voor het eerst in 1738, oud-burgemeester in 1761, schepen in 1780 en het kunst schepen in 1782. Het College stelt hem in 1737, 1739 en 1763 aan tot kerkmeester van de Nederlands Hervormde kerk van Hoogwoud. Met een collega is hij belast met het beheer der kerkelijke goederen. De aanstelling vindt plaats op Goede Vrijdag.
Cornelis is Heemraad van de polder De Lage Hoek in de jaren 1768 t/m 1770, 1774 t/m 1776 en 1778 t/m 1780. De aanstelling gebeurt in januari.
Cornelis is hooimeester. Hij houdt toezicht op het voorkomen van hooibroei. Het College stelt personen aan `om toezigt te hebben op ’t broeijend hoij ieder in zijn wijk’. De hooimeesters krijgen hiervoor een exemplaar ‘uijt de Keure deeser Steede op het Broeijend Hooy – Van A°. 1724, fol. 134 tot hun narigt te geeven’ uitgereikt. De aanstelling vindt doorgaans plaats in januari.
Cornelis is verder schotgaarder. Hij int allerlei belastingen zoals de ordinaris verpondingen, extra ordinaris reele consenten, dijkgelden, schotgelden en molengelden. Twee borgen staan garant voor de afdracht van het belastinggeld. Dit zijn Jan J. Ets en Jan L. Sijp, beiden van de Hoogwouder Gouw (noot notaris van der Ster). De akte van borgtocht wordt mede ondertekend door de schepenen Cornelis C. Hoogland en Claas Alders. Na zijn dood in 1782 wordt Cornelis als schotgaarder opgevolgd door Brouwer. Dirk Appel wordt voor de eerste maal tot medeschotgaarder aangesteld. Sijbrand Cos en Jan Coopman treden als borgen op.
Cornelis trouwt eerst met Lijsbeth Arijans. Zij overlijdt op jonge leeftijd. In het testament van 25 april 1731 staat opgetekend dat zij ‘sieckelijk te bedde leggende dogh beijde haar verstand memorije en uijtsprake welhebbende en gebruijckende als klaerlijk bleecq’. Dit testament wordt bij Sijp thuis ondertekend door de schepenen Arien Roocker en Sijmen P. Vlaar als getuigen. Kort daarna overlijdt Lijsbeth.
In 1733 hertrouwt Cornelis met Neeltje Wit uit Oudendijk. Zij laten voor notaris Van den Bos uit Benningbroek in hun testament beschrijven dat bij kinderloosheid Cornelis’ broeder Jan ruim 4 morgen grasland erft evenals drie stukjes grasland samen groot ruim 4 morgen in de Hooge Meer. Verder erft Jan ‘500 gulden aan gelt en alle des Testateurs kleederen en lijfstoebehoren van silver, gout, linnen en wollen’.
Cornelis Sijp gaat met burgemeester Jacob Koorn van Aartswoud in 1738, 1739 en 1740 een compagnieschap in schapen aan. Hij laat ze halen uit Texel, fokt ermee maar heeft diverse dode schapen.
In 1741 verkoopt Cornelis Sijp 2 gilde koeien aan Jacob Koorn voor 108 gulden en 1 koe en 1 gilde vaars voor samen 90 gulden. In 1742 verkoopt Cornelis 2 vette koeien voor 120 gulden. In 1745 pacht Cornelis 6 – morgen land van Jacob Koorn voor 40 gulden, in 1746 6 morgen 314 roeden voor 65 gulden, in 1747, 1748 en 1749 hetzelfde voor 72 gulden en in 1750 voor 80 gulden.
Cornelis Sijp overlijdt in maart 1782. Op 7 december worden de roerende goederen onder zijn erfgenamen verdeeld. Al het land aan de Hoogwouder Gouw is reeds aan zoon Louris overgedragen. Cornelis laat de volgende effecten na:
Aan zoon Louris Sijp, burgemeester van Hoogwoud:
4 obligaties Vier Noorder Koggen, uitgezet 1 maart 1777 f. 4000,-
1 obligatie stad Hoorn, 15 maart 1711 f. 547,-
1 obligatie stad Hoorn, ten name van de Oost Indische Compagnie, 1 mei 1673 f. 200,-
1 obligatie Pieter rood, Abbekerker Weere, 24 augustus 1778 f. 200,-
Aan Zoon Pieter Sijp, wonende aan de Hoogwouder Gouw:
3 obligaties Vier Noorder Koggen, uitgezet 1 maart 1777 f. 3000,-
1 obligatie Vier Noorder Koggen, uitgezet 1 april 1777 f. 1000,-
1 obligatie Jacob Coppes, uitgezet 5 mei 1766
1 obligatie stad Medemblik f. 608.16.8 (=608 gulden, 16 stuivers en 12 penningen)
Aan drie minderjarige kinderen van Grietje Sijp:
(hun voogden zijn Cornelis de Beurs en Louiris Sijp)
1 obligatie Vier Noorder Koggen, 1 maart 1777 f. 1000,-
1 obligatie Vier Noorder Koggen, 1 juni 1779 f. 1000,-
2 obligaties Vier Noorder Koggen, 1 juli 1779 f. 2000,-
1 obligatie stad Hoorn, 20 september 1643
Aan Dieuwertje Sijp te Twisk, weduwe Floris Winkel:
4 obligaties Vier Noorder Koggen, 1 maart 1777 f. 4000,-
1 obligatie Lage Hoek Polder, 1 augustus 1781 f. 1000,-
Hypotheek, wed. Claas Kos te Spanbroek, 1 december 1774 f. 800,-
1 obligatie G.P. Dekker, gerechtsbode te Hoogwoud, 26 maart 1781 f. 200,-
Aan Pieter Jans Korten en Aaltje Sijp, Hoogwouder Gouwe:
3 obligaties Vier Noorder Koggen, 1 april 1777 f. 3000,-
1 obligatie Vier Noorder Koggen, 1 maart 1779 f. 1000,-
4 obligaties stad Medemblik f. 2000,-
Cornelis Sijp heeft een dochter Grietje (1734-1782). Zij trouwt te Twisk in 1761 met Jan Cornelis Winkel (1738-1769). Winkel is schipper op de ‘Postgalei’. Schoonvader Sijp stuurde de volgende brief aan Jan Winkel (noot herkomst: tijdschrift Westfriese families):
Aan schipper Jan Winkel varende op de Post Galeij leggende thans tot Cadix den 8 junij; Hoogtwouder gouw den 7 junij 1767.
Geachte Zoon Jan Winkel
Ik heb uw brief van 7 april 1767 ontvangen en uw vrouw uw brief van 8 mei. De heere sij gelooft en gedankt. Ik hoop dat U en uw scheepsvolk behouden en in redelijke gezondheid weer terugkeren, zodat wij samen mogen komen om te spreken ‘van mond tot mond’. Uw wijf met zoon en dochter zijn thans bij mij met groot plezier. Aaltje leert nu goed en Keeske is een alderliefste soete jongen, maar heeft om de week of drie last van een ‘Vreijsembuijtje’. Er schijnt altijd iets aan te mankeren. Het belangrijkste is dat wij onder de zege des Heere welvarend zijn, roepe en wensen wij van harte dat dit ook voor u mogen gelden. Ik hoop dat u behouden terugkomt, hoe eerder hoe liever het ons is.
Van Uw edele geagte vader Cornelis Sijp
In de marge schrijft Cornelis nog dat hij aan vader Winkel 1000 gulden heeft terugbetaald die hij een week eerder heeft geleend. Wij kunnen het samen wel rooien.

Walviskaak, waarvan er nog maar enkele elders in Nederland staan, op het erf van de boerderij. Ze werden gebruikt als schuurpaal voor het vee. Naast het boeren was de walvisvaart een belangrijk middel van bestaan.
Cornelis schrijft met vaste hand, waaraan te zien is dat hij vaak schrijft. Het leven van schipper Jan Winkel eindigt dramatisch. Hij verdrinkt bij een schipbreuk, tijdens een storm voor Callantsoog, op 29 november 1769. Een maand later spoelt zijn lijk aan op het strand van Wijk aan Zee. Daar wordt hij op 30 december 1769 in het kerkportaal ter aarde besteld. Een zerk met het navolgende grafschrift bedekt tot heden ten dage zijn graf:
Capiteyn Yan Cornelisz. Winkel
Van Twisk out ruijm 31½ yaar In sware storm gebleven voor Kalansoog
29 november Hier Begraven den 30 Desember 1769
Daaronder bevindt zich een tekening van een schip in nood. In de Amd. Courant van 2/5 Dec. 1769 verscheen het volgende bericht: Bij Calantsoog gebleven Kapt. Jan Winkel van St. Ubes herwaarts (= Setúbal in Portugal).
De derde Sijp
Zoon Louris Cornelis Sijp (1740-1801) beheert na het overlijden van zijn vader in 1782 de boerderij. Zijn eerste vrouw Anna Koorn uit Aartswoud overlijdt in 1783. Het echtpaar heeft negen kinderen. In 1787 hertrouwt Louris met Antje Blaauw uit Obdam. Zij hebben acht kinderen. Louris heeft diverse functies in Hoogwoud. Hij is burgemeester, schepen, schotgaarder,, kerkmeester en heemraad.
De vierde Sijp
Louris vererft de boerderij aan zijn zoon Cornelis Louris (1778-1816). Louris trouwt in 1802 met Liefje Dirks Visser en in 1806 met Antje Bakker uit Wognum. Zij krijgen respectievelijk twee en vier kinderen.
De vijfde Sijp en de eerste Pijper
Dochter Anna Sijp trouwt in 1828 met Klaas Pijper uit Twisk. Pijper kocht in 1830 de boerderij van de erven Sijp.
De tweede Pijper
Zoon Cornelis Pijper (1830-1907) is de tweede Pijper op de boerderij. Hij trouwt in 1848 met burgemeestersdochter Grietje Appel. Zij hebben zes kinderen. Na het overlijden van Grietje Appel trouwt Cornelis met Elisabeth Appel. Cornelis koopt de boerderij in 1881 van zijn vader. Ook Cornelis is burgemeester van Hoogwoud. Na zijn aftreden gaat hij rentenieren in de burgemeesterswoning aan de Herenweg 64, waar nu de familie Tuk woont. Hij verpacht de boerderij aan dochter Maartje en haar man Jacob Helder.
Na het overlijden van Cornelis Pijper verschijnen de erfgenamen op 1 februari 1908 voor notaris De Boer. De belangrijkste partijen zijn de weduwe Elisabeth Appel en vier nog levende kinderen uit het eerste huwelijk van Cornelis:
Dirk Pijper, veehouder wonende te Opmeer
Cornelis Pijper, veehouder aan de Gouwe
Doctor Frederik Pijper, hoogleraar wonende te Leiden
Simon Glas, veehouder in de Weere, getrouwd met Trijntje Pijper
Twee dochters waren al overleden, nameIijk: Anna Pijper, getrouwd met Jan Koorn, Maartje Pijper, getrouwd met Jacob Helder
Daarnaast zijn er nog zeven partijen, die op een of andere manier betrokken zijn bij de verdeling van de erfenis van Cornelis Pijper.
Elk van de kinderen heeft recht op een zesde deel van het bezit van hun vader.
Dit bestaat uit:
de percelen ter grootte van:
2,72 ha f 7037
1,31 ha f 2165
1,72 ha f 2082,24
een huismanswoning met kap(bergschuur), erf, tuin en boomgaard en in totaal 20,81 hectare land ter waarde van f 41031.35
een huismanswoning met schuur, erf tuin, boomgaard, weiland en bouwland, samen groot 13,37 hectare ter waarde van f 29.743
De verdeling is als volgt:
De weduwe Elisabeth Appel 2,72 ha
Dirk Pijper 1,72 ha
Cornelis Pijper de boerderij 13,73 ha
Simon Glas: 1,31 ha
de boerderij met 20,81 ha

Trijntje Glas-Pijper en Simon Glas Pzn, die dit huis aan de Gouwe lieten bouwen. Verder zijn op deze foto uit 1923 te zien: Trien Klaver-Glas en Jacob Glas Czn.
Simon Glas boerde in de Tropweere op 16,35 hectare land. Glas behoorde tot de grote boeren van de Gouwe. Hij was in 1907 medeoprichter van de boerenleenbank in Hoogwoud. Simon Glas en Trijntje Pijper 'rentenieren' in een huis dat ze lieten bouwen op de zuidoosthoek van de kruising Oosterboekelerweg - Gouwe, schuin tegenover café (tegenwoordig genaamd) De Egelantier.
Dochter Grietje Glas trouwde met Louris Glas. Zij pachtten de boerderij en kochten deze in 1930. Willem Rood werkte tussen 1916 en 1931 bij Louw Glas. Martien Hoogland interviewde hem in 1989 over deze periode.
Interview met Willem Rood
Willem kwam in 1916 als knecht in dienst bij Louw Glas. Willem kwam net van de lagere school en was twaalf jaar oud. Willem begon als losse' knecht. Dit betekende dat hij in rustige tijden weggestuurd kon worden. Al snel kreeg Willem een volledige werkweek uitbetaald. Deze liep in de zomer van 4 uur 's morgens tot 7 uur 's avonds en in de winter van 5 uur tot half 7. Glas wilde Willem graag houden, ook omdat Willem ging helpen bij het kaasmaken. Glas betaalde goed. Op een keer gaf hij Willem zomaar twee cent per uur opslag omdat de kaas in Hoorn een hele goeie prijs had opgebracht. Om dit te vertellen liep Glas helemaal naar het achterend van het land waar Willem aan het stront slechten was. Omstreeks 1927 verdiende Willem 25 cent per uur ofwel 20 gulden in de week. Ook verder was de relatie goed. Wanneer Willem 's avonds op de kinderen moest passen, dan stonden de sigaren voor hem op tafel. Kwam de broer van Glas, een dominee, op bezoek dan kon Willem erbij zitten om zijn koffie te drinken. Ook kreeg hij op zondag regelmatig vrijaf om naar zijn verkering in de Streek te gaan. Willem trouwde met Aal Sijm in 1929.
Willem ging in 1927 bij Glas weg omdat diens kinderen in het bedrijf gingen helpen. Na zijn trouwen in 1929 kwam Willem weer terug. In 1931 zakte zijn loon van 20 naar 14 gulden in de week. Glas had net de boerderij gekocht en de prijzen voor de kaas waren bar slecht. Jan Schouten en Jaap Hoogland van de landarbeidersbond uit De Weere probeerden om hem lid te maken, maar Willem vond het te duur. Hij ging in 1931 bij 'de kogge' werken voor 30 cent per uur.

De veestal liep door beide stolpen heen.Op de 'lange regel' waren 28 stallen.
Glas behoorde tot de grote boeren van De Gouwe, Hij had een boerderij van 25 ha, waar twee werkmannen en een inwonende meid werkten. De veestapel bestond uit twee paarden, 25 koeien. 20 schapen, een paar zeugen en het bijbehorende jongvee. Toch was Glas volgens Willem een gewone Boer. Standsverschillen vielen mee aan De Gouwe, zeker in vergelijking met de Herenweg. Je had geen eliteboeren aan De Gouwe. In het café was er weinig onderscheid tussen boeren. tuinders en arbeiders: iedereen zat door elkaar heen, ook protestant en katholiek trouwens.
Glas had wel paard en wagen. Dit was een zwarte brik op gummibanden met twee lampen aan weerszijden voor de verlichting van de wagen. 's Zondags droeg Glas een kleermakerspak en naar de markt ging hij in zogenaamd 'opknapperspak’. Door de week liep hij in een werkpak. Ook vrouw Glas was sober gekleed. Ze droeg geen gouden oorijzers en maar weinig juwelen. Traditionele gastdagen werden niet gehouden.
De woonkamer zag er wel mooi uit, met een hangende klok en Borden aan de muur. Het serviesgoed stond in twee glazen kastjes en het zilvergoed in een dichte ladenkast. De stoelen hadden een matten zitvlak en onbewerkte poten. Ook de tafel was gewoon. In de kamer werd gewoond en je deed er een koppie. Glas had wel een knappe stal. Elke zaterdag werd de stal geschrobd en werden de staarten van de koeien gewassen. In het voorjaar gingen de koeien de weide in en werd de stal grondig schoongemaakt, waarna de stenen geschilderd werden in blauw en rood. De stal werd met schelpen bedekt.
Louw Glas ging wel de voordam uit. Klaas Slagter, de rijkste boer van De Gouwe, zei eens tegen Glas: `Zo wordt het niks met jou!' Glas liet inderdaad zijn personeel het werk doen, maar hij zorgde wel voor een goede bedrijfsvoering. Glas was geen echte marktbezoeker, maar had wel diverse bestuurlijke functies. Zo was hij jarenlang, met Klaas Groot van Herenweg 100 en Cees Schilder van Herenweg 42 steunpilaar van het veefonds en was hij tot 1948 wethouder in Hoogwoud.
Melken en kazen
Het personeel begon in de zomer omstreeks 4 uur. Eerst voerde je de koeien met bieten, waarna je een kop koffie ging doen. Daarna kregen de koeien hooi en werd de groep gemist, zes stevige kruiwagens vol. Vervolgens werd gemolken, eerst nog in houten emmers en later in gegalvaniseerde ijzeren emmers. In het voorjaar en de zomer gaven de koeien veel melk en molk je vier koeien de man per uur. in de herfst vijf koeien en nog meer in februari als vele koeien droog stonden. In het voorjaar gaven de koeien in totaal 6 tot 7 bussen van 80 liter en in de winter niet meer dan 1,5 bus.
In het voorjaar en de zomer werd de melk verkaasd en wel tot het moment dat Willem in 1931 wegging. De wintermelk ging eerst naar de fabriek van De Gouwe en na diens opheffing naar Aurora. Vanaf 1931 ging alle melk naar Aurora. Het kazen verliep als volgt. De avondmelk werd gekoeld in vaten. De volgende morgen werd de room eraf geschept en bewaard in een vat. De afgeroomde avondmelk werd met de volle ochtendmelk in een kaaskuip van 400 liter verkaasd tot tien commissiekazen van vier kilo per stuk. Dit gebeurde door Willem of door Glas zelf. De room werd eens in de veertien dagen door Willem met de hand verkarnd tot boter. De karnemelk ging naar de buren. Eens per maand ging Glas met een paar honderd kazen naar de kaasmarkt in Hoorn om ze te verkopen. Hij verkocht daar dan ook de boter van zijn bedrijf.
Hooien
In juni en juli was het hooitijd. Een kleine helft van het land werd gehooid. Glas gebruikte al een maaimachine. Deze bestuurde hij zelf. Willem herinnerde zich dat in zijn lagere schooltijd zogenaamde 'poepen' het land maaiden. Het gemaaide gras, ook wel de zwad genoemd, werd de eerste jaren nog gekeerd met een hark. Na een paar dagen werd het gras met de hand geschud en tot wieren geharkt. Vervolgens werden de wieren op een hoop geschoven met een ponder. Deze houten balk werd voortgetrokken door twee paarden. De leidsman stond op deze ponder. Tenslotte werd de rook goed gesteld, ook wel `opperen' genoemd. Na een paar jaar kocht Glas een hooischudder, een wierder en een hooischuiver met pennen. De schuiver ging over de kop wanneer de hoop voldoende groot was.

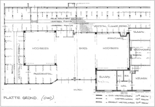
Plattegrond van de boerderij zoals die was voor de grote verbouwing naar 3 wooneenheden.
Het hooi werd vervoerd met de driewieldekar, waar precies vijf roken op pasten. In totaal kwamen er zo'n 60 tot 80 wagens van het land. Het laden van zo'n wagen was nog een kunst, omdat het hooi er onderweg niet af mocht vallen. Op de kar lag een houten raam. Eerst werd op de hoeken ervan hooi neergelegd, het `voer leggen', om het stapelen te vergemakkelijken. Gemiddeld reed je op een dag tussen melkerstijd zes vrachten hooi naar de boerderij. Daar werd het met een vork in het ontvangersgat gegooid en vandaar de hooiberg in. Soms werd het hooi met een touw de hooiberg ingesleept. Het touw was bevestigd aan een katrol die in de nok van de hooiberg hing. Via een beun tegen de zijkant van de hooiberg werd de rook omhoog gehesen.
De bemesting van het land
In de vroege winter werden de sloten uitgebeugeld. Willem deed dit werk ook met een zoon van Glas, die dus `aan het werk gezet werd'. De bagger `vroor door' in de winter waarna deze in het voorjaar over het land verspreid werd. Je ging er met een hart (beugel) overheen om de bagger fijn te krijgen. Dit karwei duurde ook een paar weken.

Dwarsdoorsnede van de boerderij.
In het voorjaar werd de gier -Westfries: ier- uitgereden. De gier liep eerst gewoon in een poel. Pas later kwam er een kelder, gebouwd door aannemer Deutekom uit Aartswoud (De eerste ierkelder te gemeente Hoogwoud werd gebouwd door A. Donker, zie Hoe het vroeger was!). De gier werd met een handpomp in een houten bak gepompt, en wel ongeveer twaalf bakken door een man tussen melkerstijd. De gier ging alleen over het hooiland.
In oktober werd de mest uitgereden. Eén man schepte de wagen vol waarna twee man de wagen leeg reden. Om de tien meter werd de mest met een klauw van de wagen af op hopen getrokken en vervolgens verspreid. Men deed zo twaalf wagens tussen melktijd. Dit hele karwei duurde ongeveer drie weken. Alleen het hooiland kreeg mest. Er was te kort voor het hele land. In het voorjaar kreeg het hele land kunstmest. Het bouwland kreeg extra slakmeel en kunstmest. De kunstmest en slakmeel werden in een bak gestort die aan een band om je nek hing. Dit was zwaar werk, ook omdat de slakmeel in je gezicht stoof.
Het vee en de markt
Glas zat vanaf 1915 in het veefonds en was vanaf 1932 voorzitter. Boeren en tuinders van Hoogwoud, Aartswoud en De Weere konden lid worden van deze onderlinge veeverzekering. Bij verlies van vee werd een deel van de waarde van het beest uitgekeerd. In het fonds zaten relatief weinig grote boeren, omdat zij zelf het risico van sterfte konden dragen. Het was tekenend voor de sociale instelling van Glas dat hij zich inzette voor het fonds. Hij had weinig afgekeurd vee, zodat hij weinig aanspraak hoefde te maken op het fonds.
Glas was ook lid van de fokvereniging van Aartswoud. Zijn melk werd gemonsterd door ene Nannings, woonachtig in de vlooienbuurt van Aartswoud. Glas streefde naar vee met papieren. Hij had dan ook een stier met papieren. Soms gebruikte hij de stieren van de bullenstiek. Deze onderlinge stierenvereniging had ook goede stieren. De bekende Wit liep met deze stieren over De Gouwe en de Hardewik op zoek naar klanten.
Glas was geen echte marktbezoeker. In het voorjaar verkocht hij zijn kalveren aan handelaren zoals P. Silver van De Gouwe, H. Bakker uit Aartswoud of Dirk Dam uit Hoogwoud. Glas vermarkte ze niet zelf, omdat het de moeite niet waard was. De handelaren kwamen met de kettewagen langs de deur. In het najaar verkocht Glas 6 a 7 oudere of mindere koeien aan bijvoorbeeld handelaar Beers uit Schagen. Wanneer Glas niet tevreden was over de geboden prijs, gaf hij het vee ook wel eens mee aan de handelaar. Deze kreeg dan een deel van de verkoopprijs. Soms vermarkte Glas zijn koeien zelf. Willem liep dan deze koeien naar Hoorn, met drie tegelijk. Hij dronk dan een kop koffie bij café Pikart in Hoorn en om één uur ging hij met Glas terug met de bakwagen.
Glas verkocht een deel van zijn biggen al na zes weken. De rest mestte hij of tot varkens van 300 a 400 pond. Dit duurde wel 1.5 jaar. De Opmeerse schippers Bram Mol of Jonker voeren de biggen naar de markt van Purmerend. waar de schippers ze verkochten. Glas verkocht zijn vette varkens zelf in Hoorn. Zijn zeugen werden gedekt door een beer van de bekende varkenshouder Bakker uit Aartswoud.
Glas verkocht zijn lammeren in mei op de markt van Hoorn. Ze werden er met de bakwagen heengebracht. De schapenmelk was bestemd voor de kalveren. De schapen werden in het begin van de zomer met de hand geschoren door J. de Vries uit De Weere.
De bouw
Glas had in 1916 bouwland, maar de omvang ervan nam in 1917 behoorlijk toe. De overheid stelde een scheurplicht in, waardoor grasland in akkerland werd omgezet. Glas hield deze bouw ongeveer tien jaar aan, tot het land te vuil werd en weer in grasland werd omgezet. Glas liet het land door eigen personeel ploegen. T. van Stralen van het Groene Wuiver deed dit werk. Loonbedrijf Rood uit De Weere zaaide in het voorjaar de bieten en het gerst. De gerst werd in juli en augustus zelf gemaaid, het 'zichten' genoemd, tot schoven gebundeld en vervolgens naar huis gereden. Het werd er met een handrosmolen gedorst. Twee man draaiden de arm van de dors rond, wat erg zwaar werk was. Later deed het loonbedrijf van K. de Graaf het met een rosmolen, voortbewogen door twee paarden. Weer later kwam loonbedrijf Klomp met een dorsmachine. Glas had zo wel voldoende stro voor de stal en kocht niet bij. Molenaar Bossen maalde het graan waarvan pap gemaakt werd in papbakken. Dit was bestemd voor de koeien en de varkens. Het vee kreeg
trouwens alleen in de herfst en de winter voer.
Bouwkundige beschrijving
De boerderij bestaat uit twee stolpen die verbonden zijn door een hals, een zogenaamde kil. Op de grootste stolp prijkt een gevelsteen waarop het jaar 1671 staat. De kleine stolp is er ongeveer 50 jaar later aangebouwd. De funderingen zijn gemetseld en afgezet met prachtige appelbloesemstenen. ook het vierkante geraamte van de boerderij staat op een gemetselde fundering. Het vierkant is opgetrokken uit eiken balken. Er is in de jaren wel het een en ander verbouwd, maar de oorspronkelijke vorm is altijd behouden gebleven. De woonkamer, ook wel 'de kapiteinskamer' genoemd. is nog altijd in zijn oorspronkelijke staat. Alleen de bedsteden zijn verwijderd, maar de deuren van de bedsteden zijn nog aanwezig.

De woonkamer met de 'smuiger' betegeld met z.g. 'Beugeltastegels'. Naast de schoorsteen twee pronkkastjes. Op de schotelrand die rondom de kamer loopt staan de borden.
De schoorsteen in de kamer is een `smuiger' Smuigers ontstonden tussen 1850 en 1900 toen de stookplaats met open vuur overbodig werd. De oorspronkelijk rookvang of rookkap werd hierdoor vervangen (bron: Brandts Buys De landelijke bouwkunst 1974). De tegels van de schoorsteen zijn van ongeveer 1780. Volgens tegelfabriek `Tichelaar te Makkum gaat het om ornamenttegels genaamd 'Beugelbladen'. De bron is het Harlinger modellenboek dat van rond 1800 dateert. In 1780 worden de eerste Beugeltastegels gemaakt. Waar de schoorsteen eerder mee is bekleed is onduidelijk. Op het erf zijn veel tegelresten gevonden met afbeeldingen van schepen en landschapjes.
Naast de schoorsteen bevinden zich twee pronkkastjes voor het servies van de familie. Rond de kamer loopt een rand waarop blauwe borden staan. Van de originele Delftsblauwe borden zijn er nog slechts twee aanwezig. De overige zijn waarschijnlijk verkocht in de crisis van rond 1880 en vervangen door borden van Regout uit Maastricht. Deze zijn van ongeveer 1900. Deze zijn inmiddels weer vervangen door de gerestaureerde borden van de eerder gemelde bodemvondsten.
Het hout van de kamer is 'gekamd' dat wil zeggen geschilderd met een kam om de structuur van hout na te bootsen. Dit gebeurt ook bij het nabootsen van marmer. Wijlen Jacob Speets van de Gouwe was zo'n specialist. Hij heeft de kamer een keer helemaal opnieuw geschilderd.

Enkele van de gerestaureerde delftsblauwe borden uit +/- 1680-1720 (diam. 35 cm). Deze borden staan weer op de schotelrand in de woonkamer.
De veestal, de lange regel genaamd. liep over de hele lengte van de boerderij en bestond uit 28 stallen. De koeien stonden met hun achterpoten op een rollaag van gele IJselsteentjes. De 'groep' waar de mest van de koeien werd opgevangen bestond uit 'blauwbakken' Als de koeien voorjaars de wei in gingen werd een zomerstal gemaakt. De groep werd dichtgelegd. De rollagen werden geschilderd en de schotten van de stallen `geblauwd'. De stalvloer werd versierd met schelpen. Aan de zuidkant werd een 'staltje' gemaakt, waar de familie leefde. Op de koegang bevond zich een haardplaats met schoorsteen waar werd gekookt. Verder was er een waterput met een pomp. In het stadhuis van Hoorn is een schilderij van deze stal te zien. Deze werd in opdracht van gemeente Hoorn gemaakt voor de opening van het nieuwe stadhuis. Op de korte regel bevond zich de kaasmakerij waar de rode kommiezenkaas werden gemaakt. De meeste spullen van de kaasmakerij zijn geschonken aan het 'Arnhems buitenmuseum' Toen is er een korte regel gemaakt voor jong vee.
In 1958 pacht de zoon van Louw Glas genaamd Simon de boerderij. Zijn vrouw heet Aaltje Appel. Vader en moeder Glas gingen in Hoogwoud wonen. Bij het opruimen van de zolder van de boerderij vonden de nieuwe bewoners Simon en Aaltje Glas sterk verwaarloosde ornamenten die de voorgevel versierd hebben. De belangstelling voor de Westfriese historie was bij hen op slag gewekt. Burgemeester Breebaart, voorzitter van het Historisch Genootschap `Oud West-Friesland', zorgde voor de restauratie van de ornamenten. Breebaart vond zelfs dat het hele bovenste gedeelte van de voorgevel gerestaureerd moest worden. Wat Breebaart zich voornam, kwam doorgaans in kannen en kruiken. Zo ook de boerderij van de familie Glas. Architect Fledderus uit Enkhuizen en timmerman Cor Snel van de Gouwe gaven op voortreffelijke wijze de boerderij zijn authentieke vooraanzicht terug. De Commissie voor Landelijk Schoon van het Historisch Genootschap sprong financieel bij. Het werd een pracht stukje werk. Schrijnwerker Valk uit Enkhuizen liet de ornamenten een metamorfose ondergaan. In het bovenlicht boven de voordeur wordt een geestig goud schilderwerkje uitgebeeld.

Het hoekje in de noordgevel waarin de 17e eeuwse gevelsteen en het oeroude raampje met twee ijzeren spijlen. Goed te zien is het verband in het metselwerk 'voeg op voeg'.
Doch het merkwaardigste is het hoekje in de noordgevel waarin de zeventiende eeuwse gevelsteen zit met een oeroud raampje, gewapend met twee stevige ijzeren spijlen. Of dit bestemd was om de vrijers buiten de deur te houden is ons niet bekend. De westgevel is in kleine keiharde steentjes gemetseld, Het moet wel een heel bijzondere metselaar zijn geweest! Vroeger werd namelijk meestal netjes in `verband' gemetseld. maar deze metselaar had zo zijn eigen verband, voeg op voeg. Mede daardoor is het een heel aparte voorgevel geworden. De restauratie werd voltooid op 30 juni 1962 (WFON 29 (1962) Kroniek van West-Friesland).
In 1968 kopen Simon Glas en Aaltje Appel de boerderij. Simon stopt in 1979 met boeren. Het land wordt verkocht. Er was geen opvolging wat problemen gaf met de boerderij. Architect Schagen uit Nieuwe Niedorp maakte met Monumentenzorg plannen voor drie wooneenheden in de boerderij. Schagen is gespecialiseerd in monumenten. Het karakter van de boerderij behoorde behouden te blijven. Door er 3 woningen in te bouwen, kon het financiële plaatje rondgemaakt worden. Alle rieten daken zijn toen ook vernieuwd. Alleen het riet op de westkant van de kleine stolp moet nog vernieuwd worden. Op oude foto's zat daar een pannenspiegel en de mogelijkheden worden bekeken om deze spiegel weer in ere te herstellen. Bijzonder is ook de afvoergoot van de kil, welke van hout is gemaakt. Wat men ook niet veel meer ziet is de pannenschoeiing bij de brug. Mede door een goed samenspel tussen bewoners, monumentenzorg, architect en aannemer kan Hoogh hout wout weer jaren vooruit. Simon en zijn vrouw bleven op de boerderij wonen en hun zoon Louw die getrouwd is met Gon Keetman koopt een deel van de boerderij. Na de verbouwing van 1980 gingen ze er wonen. De derde woning, die gesitueerd was in de zogenaamde kapberg, heeft tot 1991 leeg gestaan. In 1991 kochten Jannetje Trijntje (Jannie) Glas, de dochter van Simon Glas en Aaltje Appel, die getrouwd is met Co de Rijcke, de zogenaamde kapberg en na de verbouwing gingen zij er in wonen. In 1994 gaf Louris Glas te kennen de boerderij te willen verlaten. Jannie Glas en Co de Rijcke kochten het gedeelte van Louris Glas. Hun zoon Fred de Rijcke en zijn vrouw Jolande Sol kochten de kapberg. Na het overlijden van Aaltje Appel, kocht Grietje (Gre) Glas die woning. Zo is de cirkel weer rond. Ruim 300 jaar familiebezit van deze prachtige boerderij en wij hopen dat er nog honderden jaren bijkomen.

De voorgevel van de boerderij in 1947. Op deze foto is nog goed de pannenspiegel te zien op de westkant van de kleine stolp.
Geraadpleegde informatiebronnen:
De heer C. Sijp, mondelinge informatie en artikel C. Sijp uit tijdschrift Westfriese families jaargang 17 (1976) nr. 3 blz. 52 t/m 60.
Kroniek van dorpen Aartswoud en Hoogwoud van P. Bossen
Tijdschrift Westfriese families van fam. Winkel
Martien Hoogland interview Willem Rood
Kadaster Alkmaar:
dagregistratie april 1881 deel 47 no 1382
dagregistratie febr. 1908 deel 86 no 1392
dagregistratie mei 1930 deel 130 no 781
Archiefdienst Westfriese Gemeenten te Hoorn
Met dank aan de werkgroep van de stichting Hoochhoutwout voor hun bijdrage aan het tot stand komen van dit artikel.

De achterzijde van de boerderij zoals die is geworden na de verbouwing in 1992. (foto 1994).
